Top.Mail.Ru
Зеркальное
отражение
Проект Двухэтажный дом Гранд
Проект Двухэтажный дом Гранд
Проект Двухэтажный дом Гранд
Проект Двухэтажный дом Гранд
Проект Двухэтажный дом Гранд
Проект Двухэтажный дом Гранд

Двухэтажный дом Гранд

Двухэтажный дом «Гранд» — это просторное жилье для большой семьи, где хватит места всем. Общая площадь 173,5 м² включает пять спален, два санузла, отдельную котельную, два холла и даже собственный балкон (17,8 м²). Прое... Читать полностью

173 м²
Общая площадь

Количество этажей
Цена сейчас:

7 790 000 ₽

только до 30 апреля
Ежемесячный платеж: от 40 000 ₽/мес
В ипотеку с эскроу-счетом:
8 170 000 ₽

Коробка 1
ФУНДАМЕНТ
ЖБИ 150/150/3000
Коробка 2
ОБВЯЗКА
Брус сухой строганный 140/140
Коробка 3
ЛАГИ ПОЛА
Доска сухая строганная 190/45
Коробка 4
ЧЕРНОВОЙ ПОЛ
Доска 100/25 антисептированная с шагом 300-400мм
Коробка 5
КАРКАС НЕСУЩИХ СТЕН
Доска 140/45+45/45 перехлестный брусок
Коробка 1
СТРОПИЛЬНАЯ СИСТЕМА И ПЕРЕКРЫТИЯ
Доска сухая строганная 190/45
Коробка 2
КАРКАС ПЕРЕГОРОДОК
Доска сухая строганная 90/45
Коробка 3
НАРУЖНАЯ ОТДЕЛКА
Имитация бруса 170/18
Коробка 4
КРОВЕЛЬНОЕ ПОКРЫТИЕ
Металлочерепица GL/Stynergy 0.45мм
Коробка 5
ОТДЕЛКА ВНУТРИ
Имитация бруса 140/16
Коробка 1
ОТДЕЛКА ПОЛА
ОСП 22 мм по обрешетке 90/20 с шагом 600мм
Коробка 2
УТЕПЛЕНИЕ
Rockwool Скандик 35 кг/м³
Коробка 3
ПЛЕНКИ
Ютайвек 85, Ютайвек 115, Ютафол Н96
Коробка 4
ДВЕРИ МЕЖКОМНАТНЫЕ
Улучшенные МДФ фурнитурой
Коробка 5
ДВЕРЬ ВХОДНАЯ
Двухконтурная с терморазрывом
Коробка 5
ОКНА
Rehau Grazio 70-й профиль
ФУНДАМЕНТЖБИ 150/150/3000
ОБВЯЗКАБрус сухой строганный 140/140
ЛАГИ ПОЛАДоска сухая строганная 190/45
ЧЕРНОВОЙ ПОЛДоска 100/25 антисептированная с шагом 300-400мм
КАРКАС НЕСУЩИХ СТЕНДоска 140/45+45/45 перехлестный брусок
СТРОПИЛЬНАЯ СИСТЕМА И ПЕРЕКРЫТИЯДоска сухая строганная 190/45
КАРКАС ПЕРЕГОРОДОКДоска сухая строганная 90/45
НАРУЖНАЯ ОТДЕЛКАИмитация бруса 170/18
КРОВЕЛЬНОЕ ПОКРЫТИЕМеталлочерепица GL/Stynergy 0.45мм
ОТДЕЛКА ВНУТРИИмитация бруса 140/16
ОТДЕЛКА ПОЛАОСП 22 мм по обрешетке 90/20 с шагом 600мм
УТЕПЛЕНИЕRockwool Скандик 35 кг/м³
ПЛЕНКИЮтайвек 85, Ютайвек 115, Ютафол Н96
ДВЕРИ МЕЖКОМНАТНЫЕУлучшенные МДФ фурнитурой
ДВЕРЬ ВХОДНАЯДвухконтурная с терморазрывом
ОКНАRehau Grazio 70-й профиль
ЦЕНА 7 790 000 ₽

Описание

Двухэтажный дом «Гранд» — это просторное жилье для большой семьи, где хватит места всем. Общая площадь 173,5 м² включает пять спален, два санузла, отдельную котельную, два холла и даже собственный балкон (17,8 м²). Проект создан для тех, кто не хочет экономить на личном пространстве, но ценит рациональную планировку. Каркасная технология позволяет возвести этот дом всего за 2–2,5 месяца по фиксированной цене, с надежной теплоизоляцией и без усадки.

Пять спален — свобода для каждого
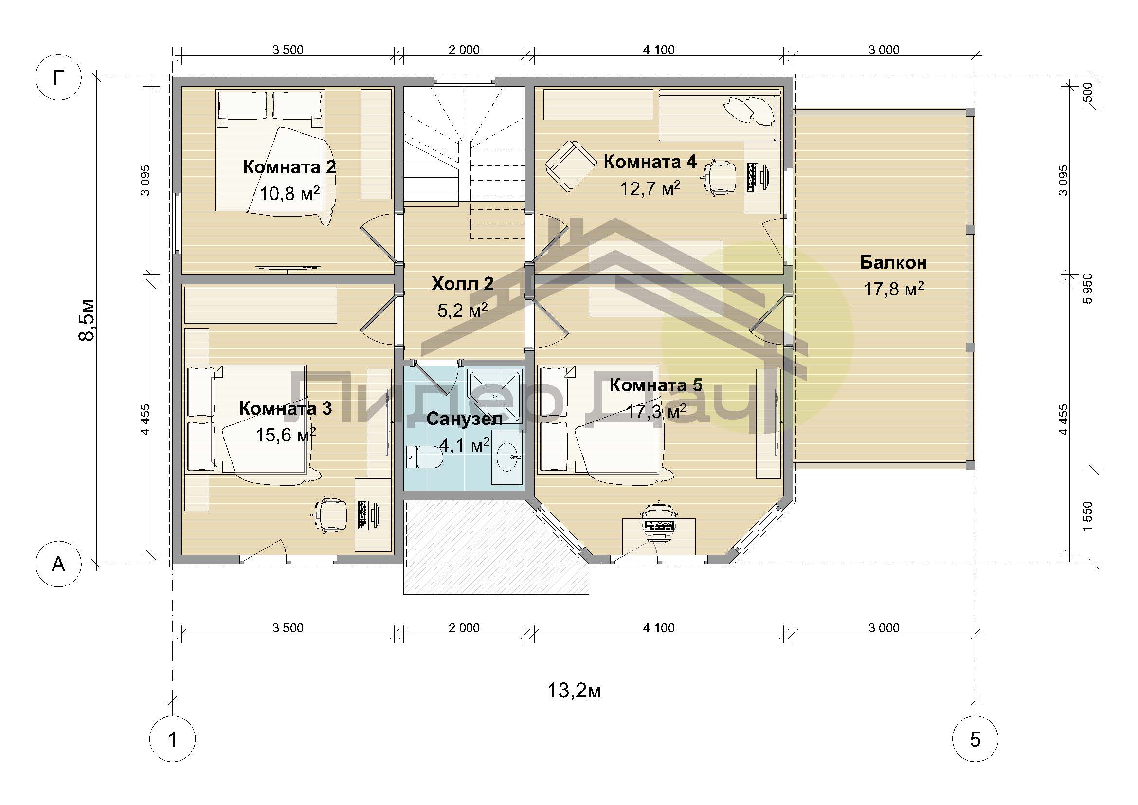
«Гранд» спроектирован с учетом максимальной приватности. На первом этаже расположены: вместительная гостиная-кухня (30,6 м²), санузел (5,2 м²), котельная (5,2 м²) и отдельная комната (12,8 м²) — идеально для спальни родителей или гостевой. Второй этаж — полноценная спальная зона: четыре комнаты (10,8, 15,6, 12,7 и 17,3 м²), второй санузел (4,1 м²) и большой холл (5,2 м²). Балкон (17,8 м²) и терраса (17,8 м²) дают возможность наслаждаться свежим воздухом, не выходя из дома. Тамбур (5,3 м²) и крыльцо (2,7 м²) защищают от холода и грязи.

В числе характерных особенностей проекта:

  • ① Фундамент из железобетонных изделий 150х150х3000 мм. Для такого массивного двухэтажного дома особенно важно надежное основание. Заводские плиты выдерживают высокие нагрузки, не дают усадку и монтируются за 1-2 дня. Подходят для любых типов грунта, включая торфяники и пучинистые почвы.
  • ② Каркас из сухих строганых досок камерной сушки. Несущие стены собраны по усиленной схеме: доска 140/45 + перехлестный брусок 45/45. Это создает жесткую конструкцию, способную выдерживать ветровые и снеговые нагрузки Московского региона. Лаги перекрытий и стропила — из доски 190/45. Влажность пиломатериалов не превышает 12-14%, поэтому усадка дома составляет не более 2-3%.
  • ③ Утепление каменной ватой Rockwool «Скандик» (35 кг/м³). В доме площадью 173,5 м² качественное утепление критически важно. Плиты высокой плотности не слеживаются, не горят (класс КМ0) и эффективно гасят шум между этажами. Ветрозащита «Ютайвек 85/115» и гидроизоляция «Ютафол Н96» обеспечивают долговечность всей конструкции.
  • ④ Окна Rehau Grazio с 70-мм пятикамерным профилем. Энергосберегающие стеклопакеты с i-стеклом снижают теплопотери до 40%. Усиленное армирование делает профиль устойчивым к взлому. Тройной контур уплотнения исключает сквозняки и промерзание откосов даже при -30°C.
  • ⑤ Входная дверь с терморазрывом и двухконтурным уплотнением. Для дома с таким количеством комнат важно минимизировать потери тепла через входную группу. Термовкладыш исключает промерзание и образование конденсата. Внутренние двери — улучшенные МДФ с качественной фурнитурой. Наружная отделка — имитация бруса 170/18, внутри — имитация бруса 140/16 (экологичный и презентабельный вариант).

Чтобы заказать строительство двухэтажного дома «Гранд» под ключ по фиксированной цене, свяжитесь с представителями компании «Лидер Дач». На рынке Московского региона с 2013 года. Доступны ипотека с эскроу-счетом. Менеджеры бесплатно выезжают на участок для замеров, помогают адаптировать проект под ваши пожелания (изменить размеры комнат, добавить окна, выбрать другой тип кровли) и рассказывают о действующих скидках. Приезжайте в один из пяти офисов или на выставочную площадку — лично оцените качество материалов и готовых решений.

Характеристики

  • общая площадь — 173,5 м2
  • крыльцо — 2,7 м2
  • тамбур — 5,3 м2
  • холл 1 — 7,8 м2
  • холл 2 — 2,5 м2
  • санузел — 5,2м2
  • гостиная-кухня — 30,6 м2
  • котельная — 5,2 м2
  • комната 1 — 12,8 м2
  • холл 3 — 5,2 м2
  • санузел — 4,1м2
  • комната 2 — 10,8 м2
  • балкон — 17,8 м2
  • комната 3 — 15,6 м2
  • комната 4 — 12,7 м2
  • комната 5 — 17,3 м2
  • терраса — 17,8 м2

Скачать каталог и описание самых популярных проектов 2025 года

Этапы работ

1
Звонок или заявка с сайта

Проконсультируем по телефону и озвучим ориентировочную стоимость работ, подскажем и посоветуем, ответим на все вопросы, довогоримся о встрече.

2
Подбор проекта

Проконсультируем и поможем Вам с выбором подходящего под Ваши требования и бюджет проекта.

3
Выезд специалиста на объект

Произведем замеры, проконсультируем, поможем найти наиболее оптимальный вариант решения Вашего вопроса.

4
Составление договора

Обсудим детали, сформируем заявку на материалы, закрепим стоимость и сроки в договоре.

5
Начало строительства

Привозим инструмент и материал. Работаем строго по плану. Начинаем с фундамента, заканчиваем внутренней отделкой.

6
Завершение работ

Подписание акта выполненных работ. Уборка строительного мусора. Передача ключей. Оплата работ. Вы радуетесь красивому и качественному дому.

Посмотрите другие проекты

Картинка Двухэтажный дом Гранд
Картинка Двухэтажный дом Гранд
Картинка Двухэтажный дом Гранд
Картинка Двухэтажный дом Гранд
Картинка Двухэтажный дом Гранд

Одноэтажный дом Роттердам

6 400 000 ₽
Картинка Двухэтажный дом Гранд
Картинка Двухэтажный дом Гранд
Картинка Двухэтажный дом Гранд

Одноэтажный модульный дом Барн

4 400 000 ₽
Картинка Двухэтажный дом Гранд
Картинка Двухэтажный дом Гранд
Картинка Двухэтажный дом Гранд
Картинка Двухэтажный дом Гранд
Картинка Двухэтажный дом Гранд

Одноэтажный дом Богатырь

4 650 000 ₽
Картинка Двухэтажный дом Гранд
Картинка Двухэтажный дом Гранд
Картинка Двухэтажный дом Гранд
Картинка Двухэтажный дом Гранд
Картинка Двухэтажный дом Гранд
Картинка Двухэтажный дом Гранд

Двухэтажный дом Барн-5

6 900 000 ₽

Каркасная технология

Тёплая и надёжная каркасная технология строительства позволяет нашим Клиентам не беспокоиться о вопросах комфорта даже в самую холодную зиму.

Технологии

ПРЕИМУЩЕСТВА КАРКАСНОЙ ТЕХНОЛОГИИ 🌟

Как компания, которая специализируется на строительстве каркасных домов уже много лет, мы не могли не написать пост о преимуществах данной технологии.

Давайте обсудим, какие у нее есть плюсы.

⏳ Сроки. Каркасная технология – идеальный вариант для тех, кто не хочет и не может долго ждать и уже готов заехать в дом. По сравнению с другими технологиями, каркасный дом можно построить за 1,5-2,5 месяца в зависимости от проекта.

💸Стоимость. Существенный плюс в копилку каркасной технологии. Снова же, сравнивая с другими видами строительства, каркасный дом имеет относительно невысокую стоимость.

💯 Фиксированная стоимость. Преимущество, которое вытекает из двух остальных. Благодаря тому, что сроки строительства каркасного дома небольшие, внешние факторы не сильно влияют на цены материалов, поэтому компания может зафиксировать цену для клиента.

🌦️Всесезонность. Пункт, который мы не упомянули в ролике, но считаем очень важным. Дом по каркасной технологии можно строить в любое время года, осадки и морозы ему не страшны.

Хотите построить дом? 🏠

Оставьте заявку на сайте и наши менеджеры свяжутся с Вами!

Гарантии и сертификации

Будем рады видеть Вас в одном из наших 5 офисов или на строительной площадке!

Мы открыты для личного общения с клиентами – приезжайте к нам

Ответы на вопросы

При заключении Договора сумма фиксируется на все время строительства. Если во время работ Заказчик принимает решение по дополнительным услугам, то составляется дополнительное соглашение к договору.

Широкие возможности купить дом в кредит/рассрочку 0%/ипотека/материнский капитал.

Минимальный срок — порядка двух недель, а максимальный — около 2 месяцев, зависит от сложности проекта.

Строительство можно начинать в любое время года, даже зимой. Например, при строительстве ленточного армированного фундамента в бетон добавляются специальные противоморозные добавки, а для устройства свайно-винтового фундамента вообще зимняя погода не помеха, также строительство самого дома зимой имеет ряд своих преимуществ.

Да, для обсуждения деталей строительства, осмотра подъездных путей, заключения договора выезжаем на участок.

Контакты

Наши офисы

г. Москва, М Автозаводская, Ленинская Слобода 19, бизнес центр Омега Плаза

г. Москва, Каширское ш., вл63к1, выставочная площадка ДомНаДом участки № 43, 50 и 58

г. Москва, Дзержинское ш., 7/7, выставка Малоэтажная страна, участок 104

Московская область, Мытищи, пос. Вёшки, ТПЗ Алтуфьево, 3В, выставочная площадка Малоэтажная страна, участок 26

Телефон

+7 495 134 44 07

E-mail

lider.dach@mail.ru

График работы

10:00 — 19:00

Telegram WhatsApp