Top.Mail.Ru
Зеркальное
отражение
Проект Одноэтажный дом Мастер
Проект Одноэтажный дом Мастер
Проект Одноэтажный дом Мастер
Проект Одноэтажный дом Мастер
Проект Одноэтажный дом Мастер

Одноэтажный дом Мастер

Одноэтажный дом «Мастер» — это идеальный баланс между компактностью и простором. При общей площади 153,6 м² здесь рационально использован каждый метр: от вместительной террасы (42,2 м²) до эргономичной прихожей и гостев... Читать полностью

153 м²
Общая площадь
1
Количество этажей
Цена сейчас:

6 890 000 ₽

только до 31 мая
Ежемесячный платеж: от 35 066 ₽/мес
В ипотеку с эскроу-счетом:
7 320 000 ₽

Ипотечный калькулятор

600 тыс 50.3 млн 100 млн
1.6 млн 4.1 млн 6.5 млн
лет
36 мес 198 мес 360 мес
Семейная ипотека
Ставка
6%
Диапазон полной стоимости кредита
от 6.249% до 21.239%
0р/мес
IT ипотека
Ставка
6%
Диапазон полной стоимости кредита
от 6.249% до 18.872%
0р/мес
Базовая ипотека
Ставка
24.3%
Диапазон полной стоимости кредита
от 24.627% до 30.456%
0р/мес

Коробка 1
ФУНДАМЕНТ
ЖБИ 150/150/3000
Коробка 2
ОБВЯЗКА
Брус сухой строганный 140/140
Коробка 3
ЛАГИ ПОЛА
Доска сухая строганная 190/45
Коробка 4
ЧЕРНОВОЙ ПОЛ
Доска 100/25 антисептированная с шагом 300-400мм
Коробка 5
КАРКАС НЕСУЩИХ СТЕН
Доска 140/45+45/45 перехлестный брусок
Коробка 1
СТРОПИЛЬНАЯ СИСТЕМА И ПЕРЕКРЫТИЯ
Доска сухая строганная 190/45
Коробка 2
КАРКАС ПЕРЕГОРОДОК
Доска сухая строганная 90/45
Коробка 3
НАРУЖНАЯ ОТДЕЛКА
Имитация бруса 170/18
Коробка 4
КРОВЕЛЬНОЕ ПОКРЫТИЕ
Металлочерепица GL/Stynergy 0.45мм
Коробка 5
ОТДЕЛКА ВНУТРИ
Имитация бруса 140/16
Коробка 1
ОТДЕЛКА ПОЛА
ОСП 22 мм по обрешетке 90/20 с шагом 600мм
Коробка 2
УТЕПЛЕНИЕ
Rockwool Скандик 35 кг/м³
Коробка 3
ПЛЕНКИ
Ютайвек 85, Ютайвек 115, Ютафол Н96
Коробка 4
ДВЕРИ МЕЖКОМНАТНЫЕ
Улучшенные МДФ фурнитурой
Коробка 5
ДВЕРЬ ВХОДНАЯ
Двухконтурная с терморазрывом
Коробка 5
ОКНА
Rehau Grazio 70-й профиль
ФУНДАМЕНТЖБИ 150/150/3000
ОБВЯЗКАБрус сухой строганный 140/140
ЛАГИ ПОЛАДоска сухая строганная 190/45
ЧЕРНОВОЙ ПОЛДоска 100/25 антисептированная с шагом 300-400мм
КАРКАС НЕСУЩИХ СТЕНДоска 140/45+45/45 перехлестный брусок
СТРОПИЛЬНАЯ СИСТЕМА И ПЕРЕКРЫТИЯДоска сухая строганная 190/45
КАРКАС ПЕРЕГОРОДОКДоска сухая строганная 90/45
НАРУЖНАЯ ОТДЕЛКАИмитация бруса 170/18
КРОВЕЛЬНОЕ ПОКРЫТИЕМеталлочерепица GL/Stynergy 0.45мм
ОТДЕЛКА ВНУТРИИмитация бруса 140/16
ОТДЕЛКА ПОЛАОСП 22 мм по обрешетке 90/20 с шагом 600мм
УТЕПЛЕНИЕRockwool Скандик 35 кг/м³
ПЛЕНКИЮтайвек 85, Ютайвек 115, Ютафол Н96
ДВЕРИ МЕЖКОМНАТНЫЕУлучшенные МДФ фурнитурой
ДВЕРЬ ВХОДНАЯДвухконтурная с терморазрывом
ОКНАRehau Grazio 70-й профиль
ЦЕНА 6 890 000 ₽

Описание

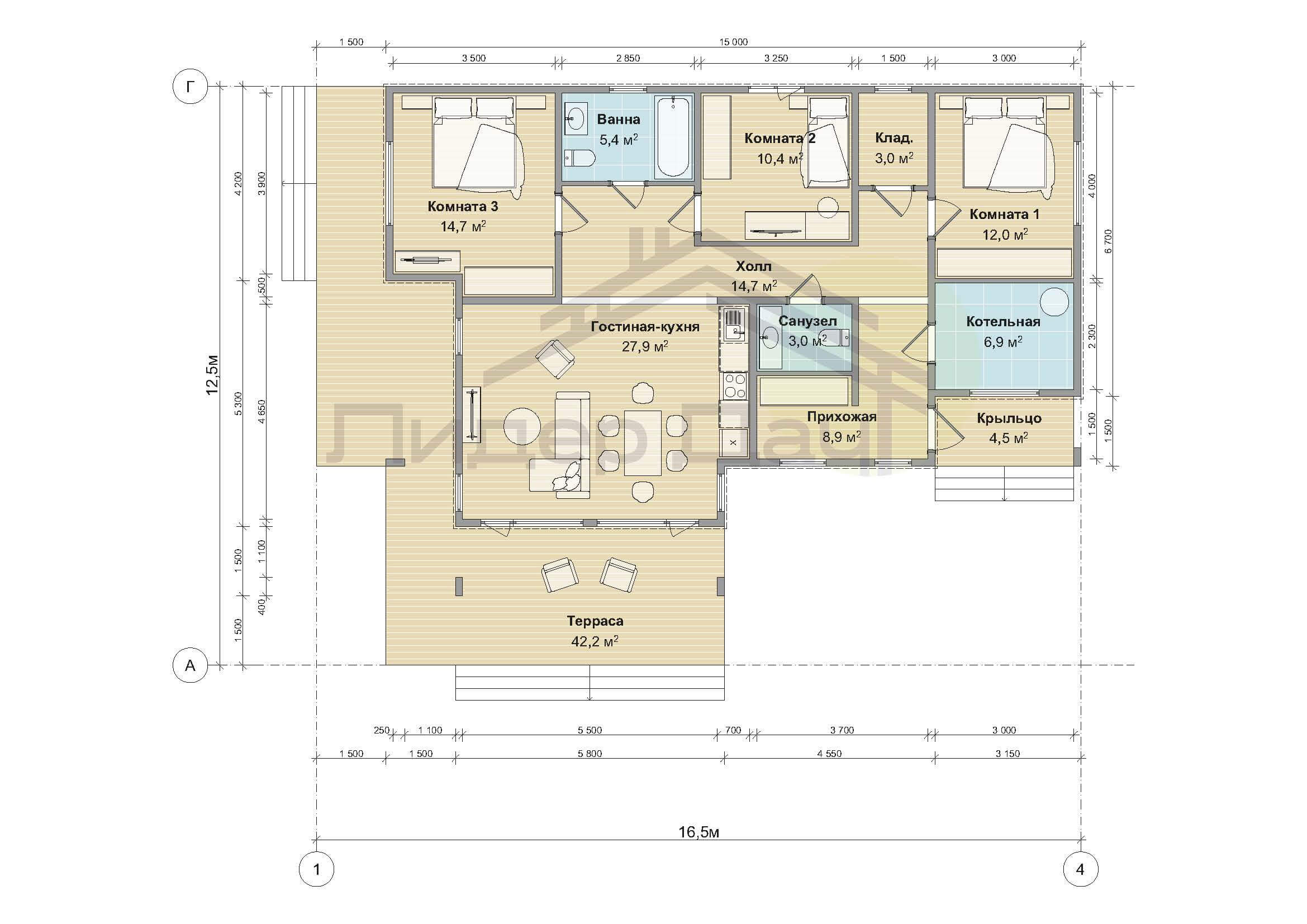
Одноэтажный дом «Мастер» — это идеальный баланс между компактностью и простором. При общей площади 153,6 м² здесь рационально использован каждый метр: от вместительной террасы (42,2 м²) до эргономичной прихожей и гостевой зоны. Проект создан для тех, кто ценит практичность одноэтажного формата: никаких лестниц, удобное зонирование и легкая адаптация под любой участок. Благодаря каркасной технологии вы получаете теплое, надежное жилье, которое возводится в сжатые сроки и не требует сложного ухода.

Практичная архитектура для загородной жизни
«Мастер» спроектирован с учетом реальных потребностей семьи. В доме предусмотрены три отдельные комнаты (12, 10,4 и 14,7 м²), просторная гостиная-кухня (27,9 м²), два санузла, котельная и вместительная кладовая. Широкая терраса (42,2 м²) становится естественным продолжением гостиной — здесь можно устраивать обеды на воздухе или хранить сезонный инвентарь. Такая планировка исключает пустующие зоны и делает каждый квадратный метр полезным.

В числе характерных особенностей проекта:
① Фундамент из ЖБИ 150х150х3000 мм. Это надежное заводское решение, которое обеспечивает равномерное распределение нагрузки даже на пучинистых грунтах. Монтаж выполняется быстро, без длительного ожидания набора прочности бетона.
② Каркас из сухих строганых досок. Для несущих стен используется доска 140/45 с перехлестным бруском, для лаг пола и стропил — доска 190/45. Материал имеет камерную сушку, минимальную влажность и не дает усадки более 2-3%, что исключает появление трещин после завершения строительства.
③ Утепление Rockwool «Скандик» 35 кг/м³. Это негорючая каменная вата с высокой паропроницаемостью. Она сохраняет тепло зимой, прохладу летом и надежно гасит уличный шум. В паре с ветро- и влагозащитными пленками «Ютайвек» и «Ютафол» утеплитель служит десятилетиями без потери свойств.
④ Окна Rehau Grazio с 70-мм профилем. Немецкая система с тройным контуром уплотнения и энергосберегающими стеклопакетами. Даже в морозы оконные откосы остаются теплыми, а внутри дома не возникает сквозняков и конденсата.
⑤ Входная дверь с терморазрывом и двухконтурным уплотнением. Это принципиально важный элемент для одноэтажного дома: дверь не промерзает, не отпотевает изнутри и исключает потерю тепла через входную группу. В комплекте — улучшенные межкомнатные двери из МДФ с качественной фурнитурой.

Чтобы заказать строительство одноэтажного дома «Мастер» под ключ по фиксированной цене, свяжитесь с представителями компании «Лидер Дач». Мы строим каркасные дома уже более 10 лет в Москве и Московской области. Возможна ипотека с эскроу-счетом, рассрочка 0% или использование материнского капитала. В личной беседе менеджеры покажут альтернативные варианты отделки, помогут адаптировать проект под ваш участок и расскажут о текущих акциях.

Характеристики

  • общая площадь —  153,6м2
  • крыльцо — 4,5 м2
  • прихожая — 8,9 м2
  • котельная — 6,9 м2
  • холл — 14,7 м2
  • санузел — 3 м2
  • кладовка — 3 м2
  • комната 1 — 12 м2
  • гостиная-кухня — 27,9 м2
  • комната 2 — 10,4 м2
  • комната 3 — 14,7 м2
  • ванна — 5,4 м2
  • терраса — 42,2 м2

Скачать каталог и описание самых популярных проектов 2025 года

Этапы работ

1
Звонок или заявка с сайта

Проконсультируем по телефону и озвучим ориентировочную стоимость работ, подскажем и посоветуем, ответим на все вопросы, довогоримся о встрече.

2
Подбор проекта

Проконсультируем и поможем Вам с выбором подходящего под Ваши требования и бюджет проекта.

3
Выезд специалиста на объект

Произведем замеры, проконсультируем, поможем найти наиболее оптимальный вариант решения Вашего вопроса.

4
Составление договора

Обсудим детали, сформируем заявку на материалы, закрепим стоимость и сроки в договоре.

5
Начало строительства

Привозим инструмент и материал. Работаем строго по плану. Начинаем с фундамента, заканчиваем внутренней отделкой.

6
Завершение работ

Подписание акта выполненных работ. Уборка строительного мусора. Передача ключей. Оплата работ. Вы радуетесь красивому и качественному дому.

Посмотрите другие проекты

Картинка Одноэтажный дом Мастер
Картинка Одноэтажный дом Мастер
Картинка Одноэтажный дом Мастер
Картинка Одноэтажный дом Мастер
Картинка Одноэтажный дом Мастер

Одноэтажный дом Роттердам

6 400 000 ₽
Картинка Одноэтажный дом Мастер
Картинка Одноэтажный дом Мастер
Картинка Одноэтажный дом Мастер

Одноэтажный модульный дом Барн

4 400 000 ₽
Картинка Одноэтажный дом Мастер
Картинка Одноэтажный дом Мастер
Картинка Одноэтажный дом Мастер
Картинка Одноэтажный дом Мастер
Картинка Одноэтажный дом Мастер

Одноэтажный дом Богатырь

4 650 000 ₽
Картинка Одноэтажный дом Мастер
Картинка Одноэтажный дом Мастер
Картинка Одноэтажный дом Мастер
Картинка Одноэтажный дом Мастер
Картинка Одноэтажный дом Мастер
Картинка Одноэтажный дом Мастер

Двухэтажный дом Барн-5

6 900 000 ₽

Каркасная технология

Тёплая и надёжная каркасная технология строительства позволяет нашим Клиентам не беспокоиться о вопросах комфорта даже в самую холодную зиму.

Технологии

ПРЕИМУЩЕСТВА КАРКАСНОЙ ТЕХНОЛОГИИ 🌟

Как компания, которая специализируется на строительстве каркасных домов уже много лет, мы не могли не написать пост о преимуществах данной технологии.

Давайте обсудим, какие у нее есть плюсы.

⏳ Сроки. Каркасная технология – идеальный вариант для тех, кто не хочет и не может долго ждать и уже готов заехать в дом. По сравнению с другими технологиями, каркасный дом можно построить за 1,5-2,5 месяца в зависимости от проекта.

💸Стоимость. Существенный плюс в копилку каркасной технологии. Снова же, сравнивая с другими видами строительства, каркасный дом имеет относительно невысокую стоимость.

💯 Фиксированная стоимость. Преимущество, которое вытекает из двух остальных. Благодаря тому, что сроки строительства каркасного дома небольшие, внешние факторы не сильно влияют на цены материалов, поэтому компания может зафиксировать цену для клиента.

🌦️Всесезонность. Пункт, который мы не упомянули в ролике, но считаем очень важным. Дом по каркасной технологии можно строить в любое время года, осадки и морозы ему не страшны.

Хотите построить дом? 🏠

Оставьте заявку на сайте и наши менеджеры свяжутся с Вами!

Гарантии и сертификации

Будем рады видеть Вас в одном из наших 5 офисов или на строительной площадке!

Мы открыты для личного общения с клиентами – приезжайте к нам

Ответы на вопросы

При заключении Договора сумма фиксируется на все время строительства. Если во время работ Заказчик принимает решение по дополнительным услугам, то составляется дополнительное соглашение к договору.

Широкие возможности купить дом в кредит/рассрочку 0%/ипотека/материнский капитал.

Минимальный срок — порядка двух недель, а максимальный — около 2 месяцев, зависит от сложности проекта.

Строительство можно начинать в любое время года, даже зимой. Например, при строительстве ленточного армированного фундамента в бетон добавляются специальные противоморозные добавки, а для устройства свайно-винтового фундамента вообще зимняя погода не помеха, также строительство самого дома зимой имеет ряд своих преимуществ.

Да, для обсуждения деталей строительства, осмотра подъездных путей, заключения договора выезжаем на участок.

Контакты

Наши офисы

г. Москва, М Автозаводская, Ленинская Слобода 19, бизнес центр Омега Плаза

г. Москва, Каширское ш., вл63к1, выставочная площадка ДомНаДом участки № 43, 50 и 58

г. Москва, Дзержинское ш., 7/7, выставка Малоэтажная страна, участок 104

Московская область, Мытищи, пос. Вёшки, ТПЗ Алтуфьево, 3В, выставочная площадка Малоэтажная страна, участок 26

Телефон

+7 495 134 44 07

E-mail

lider.dach@mail.ru

График работы

10:00 — 19:00

Telegram WhatsApp